Le conteneur d’habitation W5 offre une solution pratique pour créer un espace de vie fonctionnel et confortable. Avec une superficie de 36 m², il est conçu pour s’adapter à divers besoins, qu’ils soient résidentiels ou professionnels.
Équipements et Aménagements
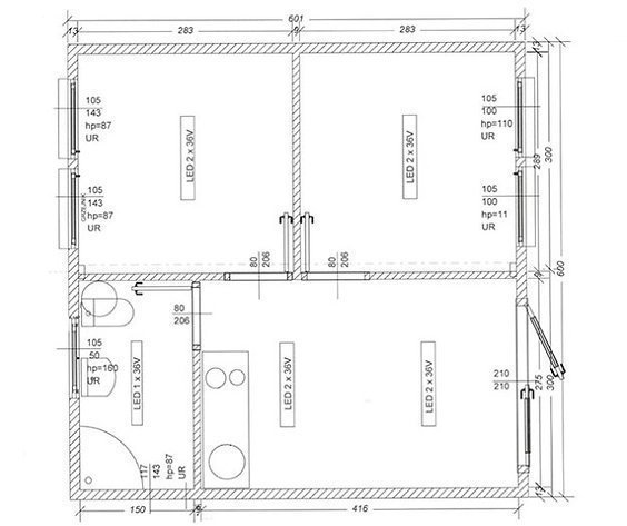
Nombre de Chambres: 3
Salle de Bains: Oui, équipée d’un lavabo, toilettes, et douche.
Cuisine: Inclut des équipements électriques, un poêle, et un évier.
Chauffage: 4 chauffages électriques.
Éclairage: 5 lampadaires à diodes électroluminescentes.
Dimensions
Dimensions Extérieures:
Longueur: 6010 mm
Largeur: 6000 mm
Hauteur: 2750 mm
Dimensions Intérieures:
Longueur: 5750 mm
Largeur: 5740 mm
Hauteur: 2500 mm
Construction
Cadre de Transport: Profils courbes à froid, tôle galvanisée de 0,5 mm.
Toiture: Feuille lisse galvanisée extérieure de 0,5 mm avec une pente de 2 %, isolée avec de la laine minérale pressée de 100 mm.
Parois Intérieures: Feuille de trapèze galvanisée T6, laine de façade pressée de 100 mm, finition en bois séché ou panneaux PVC.
Parois de Cloisons: Construction en bois imprégné, plaque OSB de 12 mm, isolation phonique.
Sol: Tôle galvanisée de 0,5 mm, laine de façade pressée de 100 mm, plaque OSB de 22 mm, finition en PVC.
Porte Extérieure: 2100 mm x 2100 mm
Porte Intérieure: 800 mm x 2060 mm
Fenêtres:
3 fenêtres de 1050 mm x 1430 mm
2 fenêtres de 1050 mm x 1000 mm
1 fenêtre de 1050 mm x 500 mm
Équipement Standard
Ventilation: 3 ventilations naturelles, 1 ventilation électrique.
Obturateurs à Rouleaux: 4 manuels.
Attique: 4 pages.
Canopies: Aucun.
Installation Électrique:
Ligne électrique avec câbles en canaux en plâtre, prises YDY 3 x 2,5 mm, éclairage JY 3 x 1,5 mm.
Boîte de Commande: Hermétique ou fiche 16A – 32A CEE sur la paroi extérieure.
Boîte de Distribution Principale: Avec fusible pour chaque circuit.
Double Douilles 230V: Individuelles.
Compteurs: Individuels.
Chauffage Électrique: Avec fusibles séparés.
Raccordement à l’Eau: Installation complète en PVC, vidange de plus de 110 mm, alimentation en eau PE32 avec vanne.
Livraison et Clés
Le conteneur est livré clé en main avec une clé pour un accès immédiat.
Ce conteneur d’habitation est une solution idéale pour un espace de vie temporaire ou additionnel, offrant confort et fonctionnalité avec un aménagement moderne et des équipements de qualité.
















Avis
Il n’y a pas encore d’avis.